Omgevingsvergunning
Wij zijn bekend met alle regels omtrent de vergunningsaanvraag! Dit proces kunnen wij geheel begeleiden voor jouw bouwproject.

| De omgevingsvergunning
Een omgevingsvergunning is de officiële toestemming van de overheid om bepaalde werkzaamheden uit te voeren die invloed hebben op de fysieke leefomgeving. Denk hierbij aan bouwen, verbouwen, slopen, het wijzigen van een monument of het kappen van bomen. Voorheen stond dit bekend als de bouwvergunning.
Voorheen had je aparte vergunningen nodig op het gebied van bouwen, milieu, water, natuur en ruimtelijke ordening. De omgevingsvergunning heeft deze gebundeld en vereenvoudigd en samengevoegd tot één vergunning via de Wet algemene bepalingen omgevingsrecht (Wabo). Sinds 2024 is de omgevingsvergunning onderdeel van de nieuwe Omgevingswet.
Onder de Omgevingswet valt ook het Besluit bouwwerken leefomgeving (Bbl), de opvolger van het vroegere Bouwbesluit. Dit nieuwe besluit stelt eisen aan onder meer veiligheid, gezondheid, duurzaamheid en bruikbaarheid van bouwwerken.
Naast het Bbl moet uw plan passen binnen het bestemmingsplan van de gemeente, en voldoen aan de lokale bouwverordening en eventuele welstandseisen. Deze regels verschillen per gemeente. Een aanvraag voor een omgevingsvergunning wordt ingediend via het Omgevingsloket van de overheid.
| Wanneer is een bouwvergunning nodig?
Een omgevingsvergunning is in veel gevallen verplicht wanneer u gaat bouwen, verbouwen, slopen of veranderen aan de buitenkant van een gebouw. Maar wanneer precies? Wij hebben dit voor u verduidelijkt per type verbouwing, zodat u weet waar u aan toe bent.
Onderstaande verbouwingen zijn voorbeelden waarvoor een vergunning vereist is:
- Aanbouw
- Dakkapel
- Dakopbouw
- Bijgebouw
- Schuur
- Draagmuur verwijderen
- Splitsen van een woning
De regels verschillen per gemeente en per situatie. Daarom is het belangrijk om altijd goed te checken of u een vergunning nodig heeft.
| Doe een vergunningscheck
Twijfelt u of u een omgevingsvergunning nodig heeft? Volg dan deze stappen:
- Ga naar het Omgevingsloket.
- Doe daar de vergunningscheck aan de hand van uw adres en geplande werkzaamheden.
- Bekijk of u vergunningplichtig bent of dat uw plan vergunningsvrij is.
Hulp nodig? Bij twijfel kan je altijd contact met ons opnemen. U kunt ook in een offerteaanvraag uw situatie omschrijven, dan kunnen wij snel inschatten wat in uw geval nodig is.
| Wat is er nodig voor een omgevingsvergunning?
Om een omgevingsvergunning aan te vragen, moet u verschillende documenten en tekeningen aanleveren. Wij helpen u hiermee, zodat u zeker weet dat uw aanvraag compleet is.
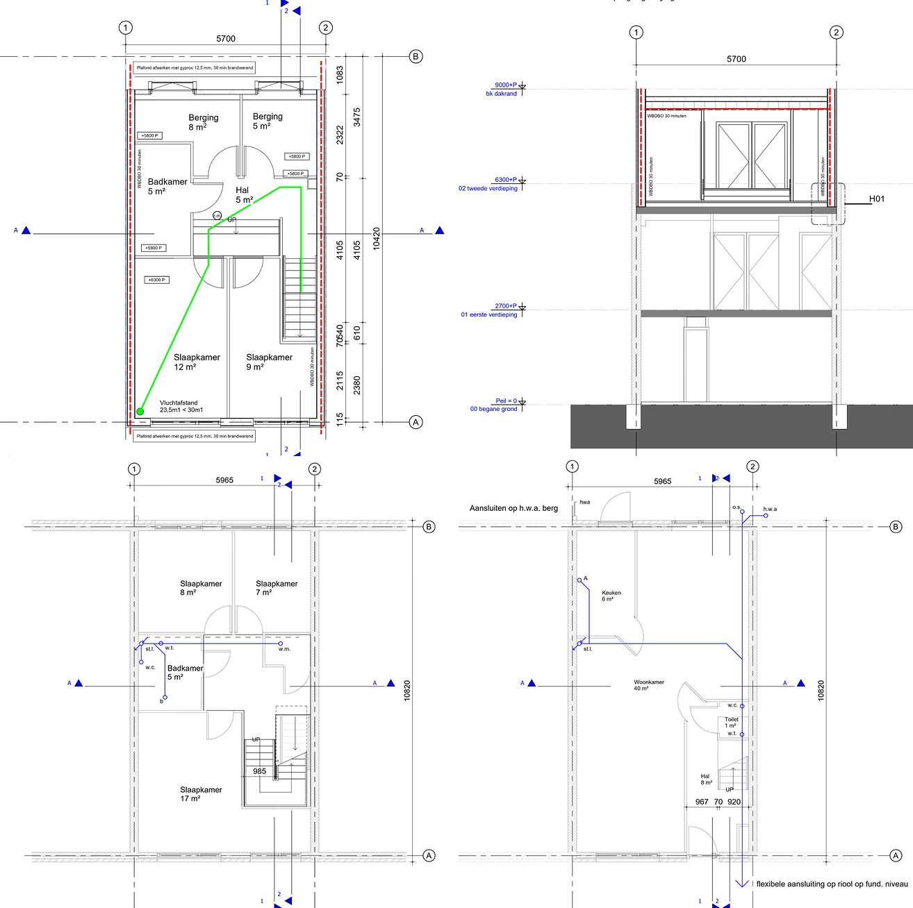
Om de bouwaanvraag-tekeningen compleet te maken, dienen onderstaande gegevens aangeleverd te worden:
- Definitief ontwerp: plattegronden, aanzichten en doorsneden van zowel de bestaande als de nieuwe situatie, details van belangrijke knooppunten
- Constructieberekeningen- en tekeningen
- Ventilatieberekeningen
- Daglichttoetreding berekening
- Warmteverliesberekening
- Eventueel Energieprestatiecoëfficiënt (EPC) en BENG berekeningen
- Gegevens over materialen en kleuren van gezichtsbepalende onderdelen (zoals gevels, kozijnen, dakafwerking)
- Oppervlakte- en inhoudsberekeningen: bruto inhoud, bruto vloeroppervlakte, gebruiksoppervlakte en verblijfsgebieden
Bij monumentale panden of beschermd stadsgezicht kunnen aanvullende eisen gelden, zoals een erfgoedadvies.

| Het proces van de vergunningsaanvraag
Het aanvragen van een omgevingsvergunning verloopt via het Omgevingsloket. Nadat de aanvraag is ingediend, beoordeelt de gemeente of het plan voldoet aan alle eisen.
De behandelingstermijn is maximaal 8 weken. De gemeente kan de termijn één keer verlengen met 6 weken. Wij zorgen ervoor dat de aanvraag correct en compleet is, zodat het proces zo soepel mogelijk verloopt.
| Kosten voor een omgevingsvergunning
Naast de kosten van het maken van bouwtekeningen en constructieberekeningen kunnen er andere kosten bij komen kijken.
Bij het aanvragen van een omgevingsvergunning krijgt u te maken met leges: dit zijn kosten die de gemeente rekent voor het in behandeling nemen van uw aanvraag.
De hoogte van deze leges verschilt per gemeente, maar ligt meestal tussen de 2% en 4% van de bouwsom. Let op: als de aanvraag tussentijds wordt gewijzigd of ingetrokken kunnen er extra leges in rekening worden gebracht, afhankelijk van uw gemeente.
| Onze pakketten
We hebben drie pakketten voor jou. Kies het pakket dat het beste bij jou past.
Pakket B
- Bouwkundig advies
- Bouwtekening bestaand en/of nieuw
- Constructieberekening
- Vergunningsaanvraag
| Neem contact op
Vul het formulier in en we nemen zo snel mogelijk contact met je op voor een vrijblijvende afspraak.